Этаж: Корпус 12
Площадь блока: 2 650 м²
Отделка:
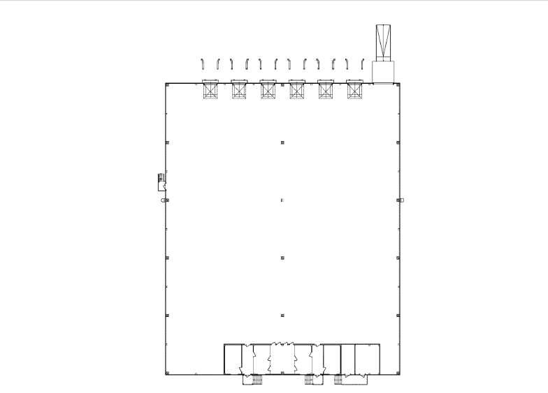
Площадь 2 650,0 кв. м Склад -2 500,0 кв.м Офис с отделкой -150,0кв.м Колонны сетка колонн в зоне склада 12х24м Рабочая высота 10,5 м Пол в складской зоне -железобетоныйс фиброй (и армокаркасомв погрузочно-разгрузочной зоне), с упрочненным верхнем слоем, нагрузка 9 т/кв. м, отметка пола +1,20 Перегрузочные системы 6 шт. –2,8х2,6 м Алютех, ворота оснащены доклевеллерами, докшелтерамии тепловыми завесами, на отметке +1,20 м; все воротные группы оборудованы нишами. Один технологический въезд возможное размещение: 5 грузовых автомобилей, Мезонин
Цена м² в месяц :833 р
Цена за склад в месяц :2 208 333 р
Наша комиссия
от 2 207 450 р
| Площадь |
| Вид помещения | Примечания | ||||
|---|---|---|---|---|---|---|---|
18 360 м² | 136.36 108 415 083
+ | субаренда | Назначить просмотр | ![]() | |||
55 800 м² | 133.68 733 740 278 | Корпус 5.2 | Назначить просмотр | ![]() | |||
103 700 м² | 133.68 733 740 278 | Корпус 7 | Назначить просмотр | ![]() | |||
4660 м² | 133.68 733 740 278 | Корпус 10 | Назначить просмотр | ![]() | |||
2650 м² | 133.68 733 740 278
+ | Корпус 12 | Назначить просмотр | ![]() | |||
Всего: 169 920 м² | |||||||

Комиссию за все объекты платят
собственники при заключении
сделки

Организуем переговоры
собственника и покупателя

Гарантируем нашим клиентам
полную конфиденциальность

Проверяем юридическую чистоту сделки,
поможем с составлением договора

Договоримся с собственником о просмотре выбранного склада в удобное для вас время.
Подберем альтернативы к просмотру, если выбранный склад не подойдет.
Поможем заключить договор на взаимно выгодных условиях.

Наш специалист перезвонит Вам в течение 60 минут
